
F series Street Light/Security Light Highbay Light Downlight Flat light L-Tube light Waterproof light Parking Lot light
· No Hole Flat Type (Edge Type)
· Engergy Saving with High Efficiency of Light
· Optimized Heat Dissipation Design
KS C 7653
Certificate No. : KTC 2016-0025

Model |
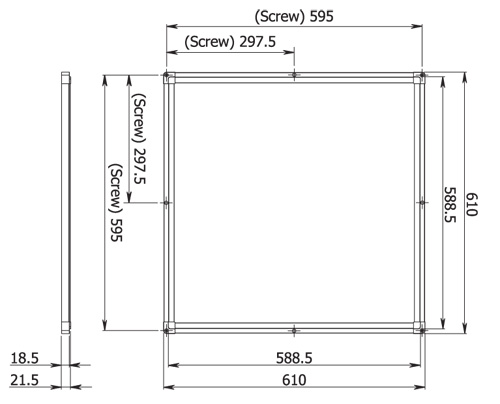
Product Size(mm) |
Body Material |
Cover Material |
LED |
LM/W |
Power |
Input Voltage |
FDE040-606 |
640x640x21.5 |
Aluminum |
PS |
SMD LED |
≥ 100 |
40W |
AC220V |

